


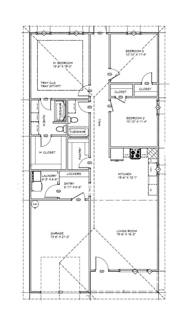
The Cherryhaven plan has been designed by our team and is a very cost effective path to home ownership. This plan has been value engineered to offer maximum efficiency without sacrificing amenities. These homes will have quartz countertops, LVP flooring, vinyl siding, architectural shingles, and a garage. This home will have 1471 heated sqft. Lot sizes will vary. We currently have 22 projected lots for these homes with an average lot size of approximately 1/2 acre lots. Locations are Florence and Darlington counties.
Sales Price $249,900
